Prodej luxusního bytu 1+kk se zasklenou lodžií v Hradci Králové - Moravské Předměstí (Prodáno)
Hradec Králové - Jana Masaryka
Luxusní byt 1+kk apartmánového bytu
Kvalitní zpracování a rekonstrukce pod dohledem architekta
Žádaná lokalita!
Vhodné pro vlastní bydlení i na pronájem
Popis
Hledáte malé bydlení v nejvyšším standardu nebo byt na pronájem apartmánového typu? Pak je tato nabídka přímo pro Vás! Prodáme luxusní, kompletně zrekonstruovaný byt v Hradci Králové na oblíbeném Moravském Předměstí kategorie 1+kk, o velikosti 29,6 m2, se zasklenou lodžií o velikosti 3,8 m2 a sklepem o velikosti 2 m2, (celková plocha činí cca 35 m2) který prošel kompletní vkusnou úpravou perem architekta a celkovou rekonstrukcí. Každý centimetr bytu je efektivně využit a je to znát na zpracování celého bytu. Promyšlený prostor, kvalitní materiály a navíc zasklená lodžie, která u malých bytů často nebývá, to jsou hlavní výhody naší nabídky!
Bytová jednotka se nachází ve 4. patře panelového domu v ulici Jana Masaryka s bezbariérovým vstupem a je orientován na západ.
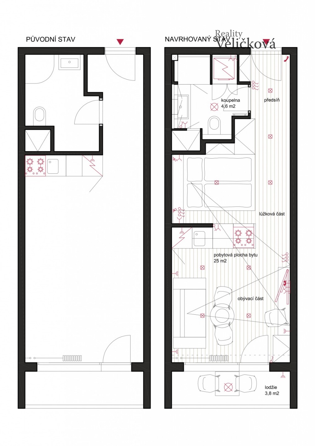
Byt je rozdělen na jednotlivé provozní části, je zde vymezena část vstupní, lůžková a část pobytová s vestavěnou kuchyňskou linkou, tak aby byt splňoval náročné potřeby začínajícího páru nebo rodiny. Koupelna v sobě obsahuje veškerý vestavěný nábytek včetně vestavěné skříně pro pračku, sušičku a zrcadlových skříněk pro ukládání potřeb.
Půdorys bytové jednotky přesně řeší rozmístění úložných prostor, sedacího nábytku, zařizovacích předmětů a elektroinstalace.
V roce 2022 byt prošel kompletní rekonstrukcí včetně SDK stropů, elektroinstalace včetně LED osvětlovacích prvků, vypínačů a zásuvek v provedení antracit, podlahová krytina vinyl s podložkou v provedení dub natural, individuálně řešená kuchyně s LED osvětlením v provedení dub dřevodekor/ šedá/ bílošedá včetně spotřebičů německé značky KLUGE, čelo postele s úložným prostorem v provedení šedá, v koupelně byly použity rektifikované obklady a dlažba v provedení kámen/ antracit, závěsné WC a sanita německé značky JUNGBORN, skleněný sprchový kout, pákové baterie německé značky GROHE, vestavěné skříňky se zrcadlovými dveřmi včetně LED osvětlení, vestavěné dveře, skříně pro pračku se sušičkou v provedení dřevodekor, byly vyměněny vstupní bezpečnostní dveře za nové v provedení antracit, dveře jsou obložkové, prosklené v provedení dřevodekor. Okna jsou plastová se žaluziemi, lodžie je zasklená.
Kupující si může dle potřeby bytovou jednotku dovybavit vestavěným úložným nábytkem, na který je provedeno zaměření a výrobní dokumentace u spřízněné truhlárny, která tuto jednotku vybavovala. Nábytek z fotografií není součástí vybavení bytové jednotky.
Byt je možné okamžitě pronajímat.
Oblíbená lokalita města Hradce Králové - Moravské Předměstí se vyznačuje dostupností všech služeb a zeleně - parků, blízkosti NovoHradeckých lesů apod. Vedle domu naleznete mimo jiné dostatek parkovacích míst, supermarket Albert, ruční myčku, zdravotní středisko i OC Futurum.
Energetickou třídu uvádíme ze zákona G, protože nám zatím nebyl předložen energetický štítek. Reálná třída bude nižší.
Na prohlídku s Vámi se těší makléřka Petra Veličková! Nenechte si tento překrásný byt ujít! S vyřízením případného hypotečního úvěru rádi pomůžeme.
Bytová jednotka se nachází ve 4. patře panelového domu v ulici Jana Masaryka s bezbariérovým vstupem a je orientován na západ.
Byt je rozdělen na jednotlivé provozní části, je zde vymezena část vstupní, lůžková a část pobytová s vestavěnou kuchyňskou linkou, tak aby byt splňoval náročné potřeby začínajícího páru nebo rodiny. Koupelna v sobě obsahuje veškerý vestavěný nábytek včetně vestavěné skříně pro pračku, sušičku a zrcadlových skříněk pro ukládání potřeb.
Půdorys bytové jednotky přesně řeší rozmístění úložných prostor, sedacího nábytku, zařizovacích předmětů a elektroinstalace.
V roce 2022 byt prošel kompletní rekonstrukcí včetně SDK stropů, elektroinstalace včetně LED osvětlovacích prvků, vypínačů a zásuvek v provedení antracit, podlahová krytina vinyl s podložkou v provedení dub natural, individuálně řešená kuchyně s LED osvětlením v provedení dub dřevodekor/ šedá/ bílošedá včetně spotřebičů německé značky KLUGE, čelo postele s úložným prostorem v provedení šedá, v koupelně byly použity rektifikované obklady a dlažba v provedení kámen/ antracit, závěsné WC a sanita německé značky JUNGBORN, skleněný sprchový kout, pákové baterie německé značky GROHE, vestavěné skříňky se zrcadlovými dveřmi včetně LED osvětlení, vestavěné dveře, skříně pro pračku se sušičkou v provedení dřevodekor, byly vyměněny vstupní bezpečnostní dveře za nové v provedení antracit, dveře jsou obložkové, prosklené v provedení dřevodekor. Okna jsou plastová se žaluziemi, lodžie je zasklená.
Kupující si může dle potřeby bytovou jednotku dovybavit vestavěným úložným nábytkem, na který je provedeno zaměření a výrobní dokumentace u spřízněné truhlárny, která tuto jednotku vybavovala. Nábytek z fotografií není součástí vybavení bytové jednotky.
Byt je možné okamžitě pronajímat.
Oblíbená lokalita města Hradce Králové - Moravské Předměstí se vyznačuje dostupností všech služeb a zeleně - parků, blízkosti NovoHradeckých lesů apod. Vedle domu naleznete mimo jiné dostatek parkovacích míst, supermarket Albert, ruční myčku, zdravotní středisko i OC Futurum.
Energetickou třídu uvádíme ze zákona G, protože nám zatím nebyl předložen energetický štítek. Reálná třída bude nižší.
Na prohlídku s Vámi se těší makléřka Petra Veličková! Nenechte si tento překrásný byt ujít! S vyřízením případného hypotečního úvěru rádi pomůžeme.
Číslo nabídky
N1921
Adresa
Hradec Králové, Jana Masaryka
Dispozice bytu
1+kk
Druh stavby
Panelová
Celková plocha
31 m2
Užitná plocha
35 m2
Stav objektu
Velmi dobrý
Typ domu
Patrový
Číslo podlaží
4
Počet podlaží
10
Vlastnictví
Osobní
K dispozici od
2022-05-19
Umístění objektu
Klidná část obce
PENB: Náročnost budovy
G - Mimořádně nehospodárná
Hypoteční kalkulačka
Kč
%
let
Kč
Kč
Naše služby v kostce
Co vše umíme a dokážeme zajistit
Prodej nemovitosti
Bezstarostný prodej nemovitosti od A do Z. Zprostředkujeme prodej, koupi i pronájem Vašich nemovitostí. Vše za Vás vyřídíme.
Financování
Můžeme Vám pomoci s financováním nemovitosti. Nabízíme zprostředkování hypotečních úvěrů, refinancování, úvěry ze stavebního spoření a další.
Developerské projekty
Spolupracujeme s developerskými firmami a máme i vlastní developerské projekty. Pomůžeme Vám s výstavou dřevostavby i zděného domu.